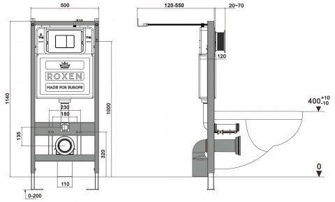
Комплект инсталляции Roxen StounFix Dual Fresh 710200 — это надёжная, усиленная и ультратонкая модель, обеспечивающая максимальную экономию пространства. Оптимальная монтажная глубина 120 мм позволяет создать нужное давление в смывном бачке для максимально мощного потока воды.
Рама изготовлена из высокопрочной стали и покрыта порошковой краской методом автоматического вакуумного напыления. Бачок защищён шумоизоляционной пластиной S-Protect, предотвращающей образование конденсата и плесени. Механическое управление смыва обеспечивает долговечную и стабильную работу. Для удобства регулировки глубины монтажа инсталляция комплектуется удлинёнными креплениями Plattenbau (шпильки длиной 50 см).
Система Dual Fresh — дезинфекция и ароматизация воды
Запатентованная система Dual Fresh обеспечивает гигиену и ароматизацию воды с помощью гигиенических таблеток.
Преимущества:
- Дезинфекция: предотвращает размножение бактерий, эффективно устраняет известковый налёт и загрязнения, поддерживая чистоту и первоначальный вид унитаза.
- Ароматизация: придаёт воде свежий лёгкий аромат, устраняя неприятные запахи.
- Простота использования: встроена в инсталляцию, не требует дополнительного монтажа. Достаточно снять кнопку и опустить таблетку в специальное отверстие; через несколько минут раствор готов к использованию.
- Экономичность: не требует дополнительных затрат на монтаж и обслуживание — докупаются только таблетки.
- Совместимость с инсталляциями Roxen: система разработана специально для этих моделей, обеспечивая оптимальную работу.
Технические особенности инсталляции
- Материал рамы: высокопрочная сталь
- Нагрузка: до 400 кг (испытательная — 800 кг)
- Монтажная глубина: 120 мм
- Совместимость: унитазы 18 см и 23 см
- Удлинённые крепления: Plattenbau
- Механическое управление смыва
- Ограничитель потока воды в комплекте
- Система Dual Fresh для ароматизации и дезинфекции воды
- Бачок: цельнолитой HDPE, объём 3/6 л
- Шумоизоляция: S-Protect и шумоизоляционная плита
- Расширенное ревизионное окно для доступа к арматуре
- Тихое наполнение бачка
- 2-х режимная система смыва
- Латунный запорный вентиль
- Гарантия: 25 лет
Кнопка смыва Roxen Glass 430280B
Современная ультратонкая клавиша Slim Button, толщина 8 мм (стеклянная панель 4 мм), чёрного цвета с прямоугольными хромированными клавишами.
- Материал: закалённое стекло
- Поверхность: ударопрочная, легкоочищаемая, устойчивая к царапинам и тепловым воздействиям
- Антибактериальное покрытие: Purity
- Бесшумная двухрежимная система смыва: LightTouch
- Быстросъёмная система Easy Fix для удобного доступа к коммуникациям
- Надёжность механизма: рассчитан на 200 000 циклов
Размеры клавиши:
- ширина: 246 мм
- высота: 165 мм
- толщина: 8 мм
- управление: механическое
Купить Roxen StounFix Dual Fresh 873337 вы можете в нашем интернет-магазине по низкой цене и выгодной доставкой по Минску и всей Беларуси. У нас работают грамотные специалисты, которые проконсультируют вас по выбору всей сантехники и комплектующих. В нашем магазине только сертифицированная продукция с заводской гарантией от производителя
